01 43 89 66 55
19 rue Henri Janin 94190 Villeneuve-Saint-Georges

PAVILLON 3 CHAMBRES


< Retour

Partager sur

gallery loader
Exclusivité

Maison 116.01 m² - 7 Pièces - Villeneuve-Saint-Georges 231 660


Description de l'offre Ref 0410716


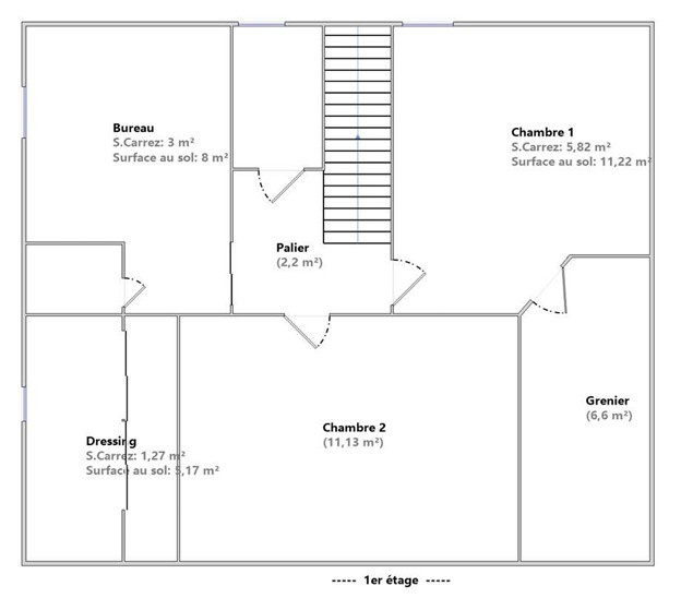
EXCLUSIVITE!! Rue Georges Picot, pavillon en meulière de 116m² au sol (77m² en carrez) sur un terrain de 256m² avec garage Il est composé d'un rez de jardin avec une pièce avec wc, une chaufferie, et une salle de bains. Au rez de chaussée; entrée, séjour double, une chambre, salle d'eau wc. A l'étage: 2 chambres, un bureau, grenier et wc. Double vitrage PVC - Chauffage au fioul. Travaux à prévoir. Proche des bus, des commerces de proximité et des écoles. Taxe foncière: 1 322€

Diagnostics de performance énergétique


DPE
DPE

Logement à consommation énergétique excessive : classe G

Montant estimé des dépenses annuelles d'énergie pour un usage standard est compris entre 5 100 € et 6 950 € . Prix moyens des énergies indexés sur les années 2021, 2022 et 2023 (abonnements compris).

Descriptif du bien


Code postal 94190


Surface habitable (m²) 116,01 m²


surface terrain 256 m²


Surface loi Carrez (m²) 77,76 m²


Nombre de chambre(s) 3


Nombre de pièces 7


Nombre de niveaux 2


Nb de salle de bains 1


Nb de salle d'eau 1


Cuisine SEPAREE


Mode de chauffage Fioul


Type de chauffage Radiateur


Format de chauffage Individuel


Nombre de garage 1


Nombre de parking 2


Année de construction 1930


Quartier Quartier Des Ecrivains


Copropriété NON


Prix de vente honoraires TTC inclus 231 660 €


Prix de vente honoraires TTC exclus 220 000 €


Honoraires TTC à la charge acquéreur 5,3 %


Taxe foncière annuelle 1 322 €


Cette annonce vous intéresse ?


* Champs obligatoires

* : Les informations recueillies sur ce formulaire sont enregistrées dans un fichier informatisé par La Boite Immo agissant comme Sous-traitant du traitement pour la gestion de la clientèle/prospects de l'Agence / du Réseau qui reste Responsable du Traitement de vos Données personnelles. La base légale du traitement repose sur l'intérêt légitime de l'Agence / du Réseau. Elles sont conservées jusqu'à demande de suppression et sont destinées à l'Agence / au Réseau. Conformément à la loi « informatique et libertés », vous disposez des droits d’accès, de rectification, d’effacement, d’opposition, de limitation et de portabilité de vos données. Vous pouvez retirer votre consentement à tout moment en contactant directement l’Agence / Le Réseau. Consultez le site https://cnil.fr/fr pour plus d’informations sur vos droits. Si vous estimez, après avoir contacté l'Agence / le Réseau, que vos droits « Informatique et Libertés » ne sont pas respectés, vous pouvez adresser une réclamation à la CNIL. Nous vous informons de l’existence de la liste d'opposition au démarchage téléphonique « Bloctel », sur laquelle vous pouvez vous inscrire ici : https://www.bloctel.gouv.fr Dans le cadre de la protection des Données personnelles, nous vous invitons à ne pas inscrire de Données sensibles dans le champ de saisie libre.
Ce site est protégé par reCAPTCHA, les Politiques de Confidentialité et les Conditions d'Utilisation de Google s'appliquent.