01 43 89 66 55
19 rue Henri Janin 94190 Villeneuve-Saint-Georges

MAISON 4 CHAMBRES IDEAL COLOCATION


< Retour

Partager sur

gallery loader

Bureaux 98.43 m² - 5 Pièces - Villeneuve-Saint-Georges 2 140 € / mois NAT


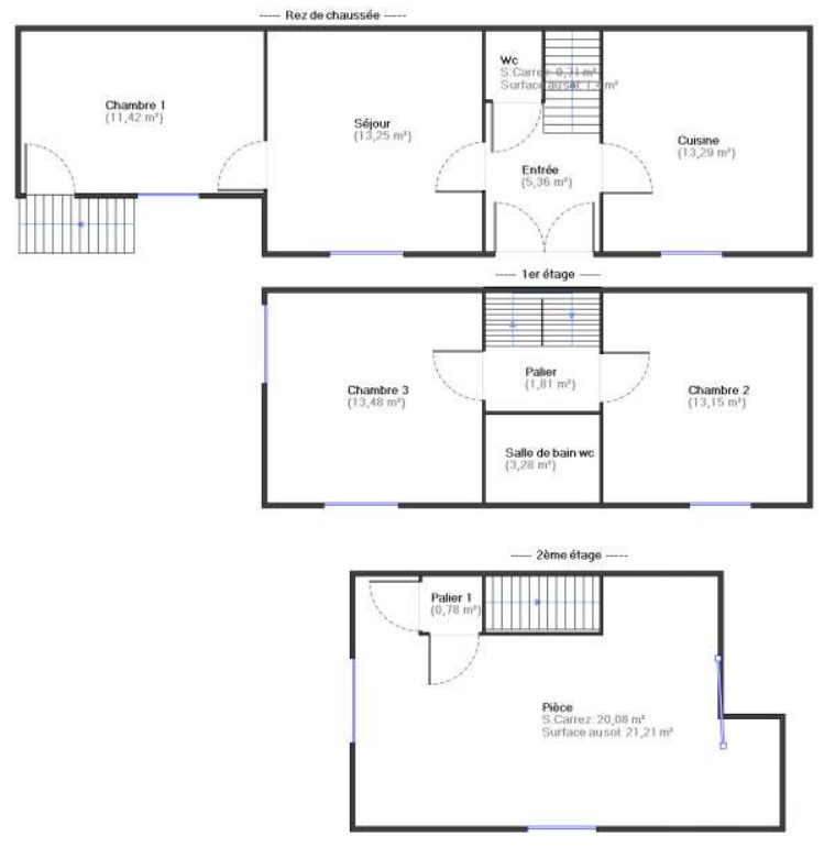
Description de l'offre Ref 1401727


PAVILLON A LOUER POUR BUREAUX Il est composé au rez de chaussée d'une entrée, 3 pièces et une cuisine. Au 1er étage: 2 pièces et salle de bains wc (sanibroyeur) Au dernier étage: une grande pièce de 20m² Garage avec dépendance - Terrain de 493m² . Gare RER D à 10min à pied ou bus en face de la maison Loyer: 2 140€ Honoraires location: 3 850€ HT Taxe foncière à la charge du locataire: 1631€

Diagnostics de performance énergétique


DPE
DPE

Montant estimé des dépenses annuelles d'énergie de ce logement pour un usage standard est compris entre 3 220 € et 4 380 € . 2021 étant l'année de référence des prix de l'énergie utilisés pour établir cette estimation.

Descriptif du bien


Type de transac Bureaux


Code postal 94190


Surface habitable (m²) 98,43 m²


surface terrain 493 m²


Surface loi Carrez (m²) 99 m²


Nombre de chambre(s) 4


Nombre de pièces 5


Nombre de niveaux 2


Superficie (m²) 98.43


Nb de salle de bains 2


Cuisine SEPAREE


Type de cuisine EQUIPEE


Mode de chauffage Electrique


Type de chauffage Radiateur


Format de chauffage Individuel


Année de construction 1900


Quartier Blandin


Copropriété NON


Loyer 2 140 € / mois


Honoraires charge locataire 3 850 €


Dont état des lieux 295,29 €


Dépot de garantie Non renseigné


Charges locatives (provision donnant lieu à régularisation annuelle) 340 €


Bail PROFESSIONNEL


Cette annonce vous intéresse ?


* Champs obligatoires

* : Les informations recueillies sur ce formulaire sont enregistrées dans un fichier informatisé par La Boite Immo agissant comme Sous-traitant du traitement pour la gestion de la clientèle/prospects de l'Agence / du Réseau qui reste Responsable du Traitement de vos Données personnelles. La base légale du traitement repose sur l'intérêt légitime de l'Agence / du Réseau. Elles sont conservées jusqu'à demande de suppression et sont destinées à l'Agence / au Réseau. Conformément à la loi « informatique et libertés », vous disposez des droits d’accès, de rectification, d’effacement, d’opposition, de limitation et de portabilité de vos données. Vous pouvez retirer votre consentement à tout moment en contactant directement l’Agence / Le Réseau. Consultez le site https://cnil.fr/fr pour plus d’informations sur vos droits. Si vous estimez, après avoir contacté l'Agence / le Réseau, que vos droits « Informatique et Libertés » ne sont pas respectés, vous pouvez adresser une réclamation à la CNIL. Nous vous informons de l’existence de la liste d'opposition au démarchage téléphonique « Bloctel », sur laquelle vous pouvez vous inscrire ici : https://www.bloctel.gouv.fr Dans le cadre de la protection des Données personnelles, nous vous invitons à ne pas inscrire de Données sensibles dans le champ de saisie libre.
Ce site est protégé par reCAPTCHA, les Politiques de Confidentialité et les Conditions d'Utilisation de Google s'appliquent.

* HC : Hors charges